V e r k s t e d
work
about
inspiration
V e r k s t e d
work
about
inspiration
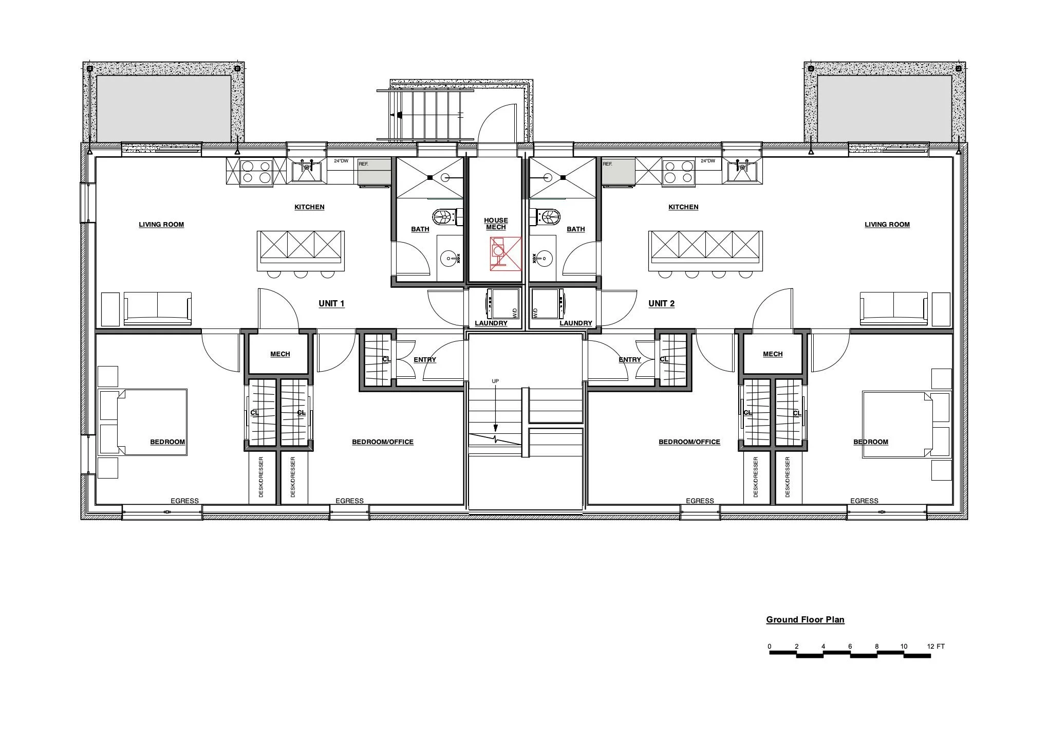
An existing three story building originally designed as a daycare building. Re-designed as a six-unit apartment building.

Apartments

An existing three story building originally designed as a daycare building. Re-designed as a six-unit apartment building.

An existing three story building originally designed as a daycare building. Re-designed as a six-unit apartment building.

Image1_000.png
1.jpg
2.jpg
3.jpg
4.jpg
All Modern Kitchen Renovation New York City Studio Apartment 324 west 12th 326 East Hampton Home Urban Infill Roses Addition Schematic The Roost Schematic Apartment Redux Collaboration Previous Work
Modern Kitchen Renovation New York City Studio Apartment 324 west 12th 326 East Hampton Home Urban Infill Roses Addition Schematic The Roost Schematic Apartment Redux Collaboration Previous Work